Deadly Ebola Virus Ravaging Africa
Severe Pandemic in West Africa
A deadly pandemic has been brewing in western Africa since December 2013. This latest outbreak of the deadly Ebola Virus Disease (EVD) began in the Republic of Guinea and then spread to Sierra Leone and Liberia. To date, 344 suspected and confirmed cases of EVD have been reported in Guinea, 112 in Sierra Leone, and 13 in Libera. Since emerging in 1976 in Sudan and Congo, EVD outbreaks have occurred 33 times.
This virus, with a case fatality rate of up to 90% (though the current strain is thought to have a fatality rate of 61% so far), is transmitted by direct contact with infected individuals or infested dead animals. This current outbreak is thought to be a result of consumption of infected bats, the natural host of this disease. The index case was a 2 year old in the village of Meliandou in Guinea.
Brisk Human to Human Spread
Once a human has been infected with EVD, the disease spreads through the community via direct contact with blood, secretions, organs and other bodily fluids of infected people or by contact with contaminated environments. Burial ceremonies are thought to be a major cause of dissemination of this disease, with at least 35 lab-confirmed cases being traced to a single traditional healer whose grieving patients handled her body during her funeral and subsequently became infected. Frighteningly, health-care workers are frequently infected while attempting to treat patients with suspected or confirmed disease.
The poor living conditions and the lack of water and hygiene in most neighbourhoods of Conakry, pose a serious risk that this epidemic will become a crisis. People don’t think about washing their hands when they don’t have enough water to drink
– Ibrahima Touré, directed of Plan en Guineé, a non-governmental development agency
In the wake of this disease, a new dance and rap song has become immensely popular in the affected countries.
Recognizing & Treating Ebola
- Severe acute viral illness
- Sudden onset fever, intense weakness, muscle pain, headache & sore throat
- Vomiting, diarrhea, rash, impaired kidney & liver function, internal & external bleeding
- Low white blood cell and platelet counts, elevated liver enzymes
- Infected individuals remain infected for as long as the virus remains in their blood and secretions
- Incubation period can be 2 – 21 days
There is no specific vaccine or treatment for EVD. Patients are supported via oral rehydration and electrolyte replacement.
Preventing Spread
- Avoid contact with fruit-bats or monkeys/apes and avoid consumption of their raw meat.
- Avoid close physical contact with infected individuals and always wear gloves and appropriate personal protective equipment
- Wash hands regularly
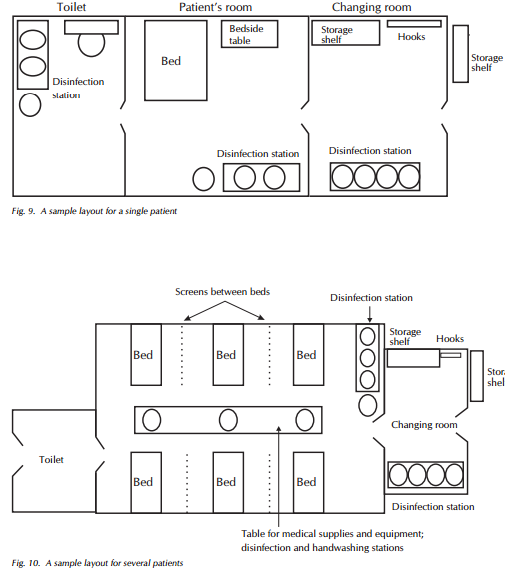
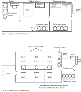
What do you do if your hospital begins to see patients with Ebola virus or other viral hemorrhagic fevers? The CDC has created an in-depth manual that addresses this issue – including diagrams for positioning of patients.
Doctors Without Borders have set up multiple clinics within the affected region to diagnose and support those suspected of being infected and have sent over 44 tons of equipment and supplies to combat the epidemic.
As of May 5th, the WHO has sent over 112 experts to Guinea, Liberia, Sierra Leone and the WHO African Regional Office to assist in the response, with expertise in areas of coordination, medical anthropology, clinical case management, data management & health informatics, surveillance & epidemiology, infection prevention & control, laboratory services, logistics, risk communications, social mobilization, finance & administration, and resource mobilization.
This video from the WHO explains how the organization responds to Ebola and other pandemic viruses.
More Information about EVD:
US Centers for Diseaese Control: CDC
US National Institutues of Health: NIH
World Health Organization: WHO
World Health Organization Guidelines: Recommended Guidelines for Epidemic Preparedness and Response: Ebola Haemorrhagic Fever (EHF)
Report written by Vidya Eswaran







3 comments